981/983 Tennyson – New Villa Park Duplex Homes
The 981/983 Tennyson project brings two new multi-level homes to Villa Park, adding modern infill housing designed for everyday comfort, flexibility, and long-term use.
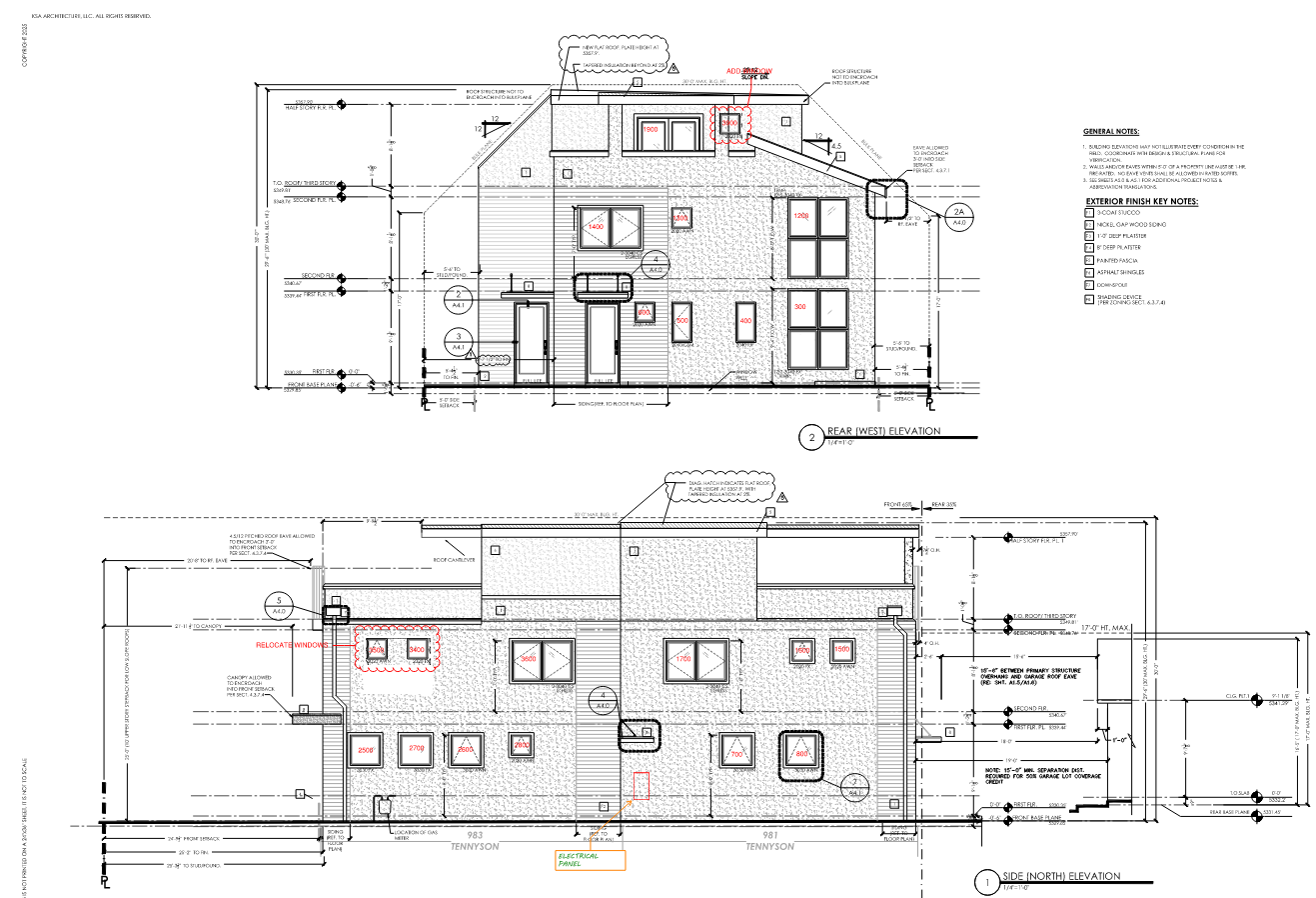
Planned as a new two-family dwelling, the project uses a vertical layout to create generous living space within a compact Denver site. Each home is designed with three bedrooms, three bathrooms, detached garage parking, and EV-ready infrastructure, giving future residents the convenience of a modern home while keeping the project grounded in the scale of the neighborhood.
Sustainabuilt is serving as general contractor and interior designer, coordinating the work from early construction through exterior systems, garage construction, trade work, inspections, and final delivery. Behind the finished homes is careful planning around property-line requirements, rated walls, durable roofing assemblies, and the many details that make infill construction perform well over time.
Design & Build Highlights
- New Infill Homes in Villa Park
The project adds two new residential units to the neighborhood, creating additional housing while maintaining a scale that fits the surrounding area. - Multi-Level Duplex Living
The 2.5-story layout makes smart use of the site, creating efficient homes with room for daily routines, privacy, and shared living. - Three-Bedroom, Three-Bathroom Layouts
Each unit is planned with three bedrooms and three bathrooms, giving the homes flexibility for future residents. - Detached Garages with EV-Ready Infrastructure
Each home includes detached garage parking with EV-ready planning built into the garage scope. - Built for Infill Conditions
Rated walls and projections near the property line are part of the construction requirements, helping the project fit safely and code-compliantly within its urban site. - Durable Roofing Assemblies
The roof scope includes a tapered flat roof system with mechanically attached DensDeck underlayment and a fully adhered 60 mil EPDM roof, along with Class 4 shingles at the garage and sloped roof areas. - Coordinated from Site Work to Finish
The project requires careful coordination across inspections, mechanical, electrical, plumbing, roofing, siding, garage construction, and final finish work.
Property Overview
- Type: Residential Duplex / Two-Family Dwelling
- Location: Villa Park, Denver, Colorado
- Address: 981/983 Tennyson St
- Project Status: In Progress
- Start Date: March 2025
- Target Completion: May 2026
- Primary Living Area: Approximately 6,254 SF
- Garage Area: Approximately 860 SF
- Total Build Area: Approximately 7,114 SF
- Garage Size: Two detached garages, approximately 430 SF each
- Stories: 2.5
- Bedrooms: 3 per unit
- Bathrooms: 3 per unit
- Garage Type: Detached Garage
- EV-Ready Scope: Yes
- Roof Scope: 60 mil EPDM Flat Roof System + Class 4 Shingles at Garage and Sloped Roof Areas
- Interior Designer: Sustainabuilt
- General Contractor: Sustainabuilt